Program wspomagający tworzenie rysunków budowlanych, rzutów oraz elewacji. Umożliwia rysowanie ścian wielowarstwowych, wstawianie okien, drzwi, wymiarowanie architektoniczne, tworzenie opisów oraz wykorzystywanie obiektów z bibliotek wyposażenia wnętrz. Unikalną cechą programu jest możliwość projektowania planów ewakuacyjnych i BHP.
CADprofi Architectural jest wystarczającym uzupełnieniem ogólnych programów CAD, dzięki czemu znacznie szybciej można stworzyć lub edytować podkłady budowlane.
Tworzenie rysunków architektonicznych związane jest z rysowaniem ścian, wstawianiem obiektów stolarki i wyposażenia oraz z opisywaniem rysunków. Program CADprofi oferuje projektantowi odpowiednie polecenia, które znacznie ułatwiają i przyspieszają pracę. Wiele opcji automatyzuje często wykonywane czynności, dlatego bardzo ważne jest poznanie sposobów pracy dostępnych w programie.
Ważnym etapem tworzenia projektu jest opisywanie elementów oraz pomieszczeń, dzięki temu możliwe jest tworzenie różnych zestawień.
Domyślną jednostką po zainstalowaniu programu są milimetry. Projekty architektoniczne są najczęściej tworzone w centymetrach. Aby przełączyć jednostkę należy uruchomić polecenie CADprofi Opcje i przy wyborze jednostek zaznaczyć opcję Centymetry.

CADprofi Architectural w 2
minuty

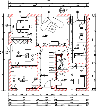
Przykładowy rzut budynku wykonany w CADprofi Architektural