Der Befehl Treppen
ermöglicht schnell Treppen mit
festgelegten Parametern zu erstellen. Sowohl einläufige gerade Treppen als auch
Podeste sind verfügbar. Mit diesen Elementen ist es möglich Treppen für eine
Vielzahl von Fällen zu erzeugen.

Dialogfenster Treppen
Die Basisfunktionen und Optionen bezüglich der Arbeit mit Objekten sind im Abschnitt Möbel, Einrichtung) beschrieben. Zusätzliche Optionen des Befehls:
Voransicht und Parameter – eine Beispielvorschau mit Elementparametern.
•n1 – Anzahl der Steigungen.
•W1 – Gesamttreppenbreite.
•S – Stufentiefe.
•H – Stufenhöhe.
•A – Auftrittshöhe.
•B – Austrittshöhe.
•Z – Überschneidung (in der eingestellten Einheit).
•Überschneidung „Z” – aktiviert/deaktiviert Zeichnen von „Überschneidungen” für Stufen.
•Schnitthöhe – aktueller Wert der Treppenschnitt-Ansicht. Die Treppenansicht (normale und verdeckte Stufen) ist abhängig von dieser Höhe.
•Einfügepunkt – Wahl der Einfügepunkte des Objekts (P1, P2 in der Vorschau).
•Texthöhe – Texthöhe der Treppenbeschriftung.
|
•Formeln – Typ der Treppenformel.
Die Auswahl des leeren Feldes am Ende der Liste bedeutet, dass keine Treppenformel eingefügt wird. |
|
6 Vorgehensweise
1.
Aufruf des Befehls Treppen Treppen und Geländer
.
2. Im Dialogfenster Treppen und Geländer klicken Sie in der Liste der Elemente den gewünschten Treppentyp, der in die Zeichnung eingefügt werden soll.
3. (Optional) Wählen Sie den Treppentyp aus der Liste der Vorschaubilder im oberen Bereich des Fensters.
4. Geben Sie im Vorschaufenster die Treppenparameter an.
5. (Optional) Ändern oder Zeigen Sie den Winkel.
6. (Optional) Aktivieren Sie die Funktion Winkel um den Drehwinkel beim Einfügen des Blockes festzulegen.
7. (Optional) Aktivieren/deaktivieren der Option Mehrmals einfügen.
8. Gehen Sie auf den Schalter Einfügen um das Element in die Zeichnung zu bringen.
9. Geben Sie den Einfügepunkt für den Block an.
10. (Optional) Zeigen Sie mit zwei Punkten den Drehwinkel des Blocks.

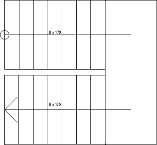
Zweiläufige Treppe mit den verfügbaren Elementen erstellt
Mit diesem Befehl können Sie Balustraden zu Balkonen, Terrassen und Treppen hinzufügen. Mit diesem Befehl können Sie Handlaufparameter, Pfostenparameter, Ankerart, Material und Füllung auswählen. Die Abmessungen der Balustrade können auch aus der Zeichnung abgerufen werden.
Balkon- und Terrassengeländer - Frontansicht

Das Dialogfeld „Geländer“ enthält:
Füllung auswählen – Schaltfläche zum Hinzufügen einer
Geländerfüllung.
Am Bildschirm
definieren – Schaltfläche, mit der die Maße direkt aus der Zeichnung
übernommen werden können.
Kategorienbaum – eine Sammlung aller in der Bibliothek enthaltenen Kategorien und Elemente, die in einer hierarchischen Form dargestellt werden. Es ist möglich, die Reihenfolge, in der die Elemente in der Liste angezeigt werden, mit Hilfe der Optionen anzupassen:
Sortieren – Anordnung der Kategorien und ihrer Inhalte in alphabetischer Reihenfolge.
Geländer Konfigurator – der Bereich, in dem wir die Geländer erstellen und bearbeiten können und dessen Vorschau angezeigt wird.
Handlaufparameter – der Bereich, in dem die Parameter des Handlaufs und seine Form ausgewählt werden.
Pfostenparameter – der Bereich, in dem die Parameter des Pfostens und seine Form ausgewählt werden.
Pfostenverankerung – Schaltfläche, die festlegt, wie der Geländerpfosten befestigt werden soll.
Material – Liste der Materialien, aus denen das Geländer hergestellt wird.
Einfügepunkt – Liste der Punkte, die den Einfügepunkt der Geländer auf der Zeichnung definieren.
Winkel manuell/Winkel – die Optionen ermöglichen den erstellten Block in einem bestimmten Winkel
oder das Einfügen eines Objekts in einem beliebigen Winkel in die Zeichnung einzufügen.
Ansicht – Option zur Änderung der Ansicht der Geländer relativ zur X- und Y-Achse
Im Befehl Geländer stehen im Geländer Konfigurator verschiedene Ansichten für Balkone und Terrassen zu Verfügung:

Balkon- und Terrassengeländer – Draufsicht.

Dialogfenster Befehl Geländer
6 Vorgehensweise
Einfügen von Geländern in die Zeichnung
1.
Befehl Treppen und Geländer
ausführen.
3. Erstellen Sie im Dialogfenster ein Geländer, indem Sie die Parameter, die Maße, die Füllung, das Material und den Einfügepunkt auswählen.
4. Drücken Sie auf Einfügen.
5. Geben Sie den Einfügepunkt des Objekts in der Zeichnung an.